00件
最近見た物件
00件
検討リスト
札幌市の不動産情報|株式会社トータルハウジング > (マンション(売買))地域から探す > 札幌市中央区 > セザールガーデン札幌 > 物件詳細
新生活を失敗せず、スタートさせたいならこちらの「セザールガーデン札幌」はいかがでしょうか。不審者が侵入しづらいオートロック付き物件なので安心です。置き配のセキュリティに心配がある方に、鍵がついていてより安全性の高い宅配ボックスがおすすめです。札幌市中央区の不動産情報をお求めなら、当社にお任せ下さい。当社のスタッフがしっかりとサポート致します。
【外観】流行に左右されず、将来にわたって価値が継続する「上質」な佇まい。おしゃれな雰囲気や自然の潤い、親しみやすさといった暮らしを豊かにしてくれる住空間です。
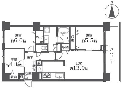
【間取り】3LDK・オートロック付き・トランクルーム有・ペット飼育相談可能
※写真や図と実際の現状とが異なる場合は現状を優先させていただきます。











(※元利均等方式 金利5.00%まで ※返済年数5~50年まで入力できます)
(※ボーナスは年2回で計算しています。1000万円まで入力できます)
(※物件購入時、その他諸費用が発生する場合がございます)
| 所在地 | 北海道札幌市中央区北二条東9丁目11-2 | ||
|---|---|---|---|
| 交通 | |||
| 間取り/詳細 | 3LDK | ||
| 専有面積/バルコニー面積 | 69.71㎡/9.76㎡ | ルーフバルコニー面積/テラス面積/専用庭面積 | -/-/- |
| 価格 | 3,599万円 | ||
| 管理費 | 9,070円 | ||
| 修繕積立金 | 13,950円 | 修繕積立基金 | - |
| 権利金 | - | 駐車場/月額料金 | 空有/ 月額8,000~15,000円・R7.9.4現在 |
| 土地の敷金/保証金 | -/- | 借地料/借地期間 | -/- |
| 土地権利 | 所有権 | 国土法届出要否 | 不要 |
| 用途地域 | - | 地勢 | - |
| 種別/構造 | 中古マンション/鉄筋コンクリート | 向き | - |
| 築年月(築年数) | 2009年 6月 (築16年) | ||
| 所在階/階建 | 8階/10階建 | 棟総戸数/販売戸数 | -/- |
| 管理組合有無 | 有 | 管理形態 | 管理会社に全部委託 |
| 管理員の勤務形態 | 日勤 | 管理会社 | 株式会社穴吹ハウジングサービス |
| 取引態様 | 仲介 | 現況 | 空家 |
| 引渡し | 即時 | 建築確認番号 | - |
| 物件番号 | 97700808 | 取引条件の有効期限 | 2025年11月22日 |
| リフォーム |
2025年6月 トイレ 壁 床 |
||
| 設備条件 |
|
||
| 備考 | こちらの物件からローソン 札幌厚生病院店まで283mです。10階建てのオススメの建物がコチラです。3,690万円台の、ニーズの高い物件はこちらです。住宅情報をお求めなら、数多くの物件を取り扱っている当社にお任せください。当社はお客様のこだわりやご要望に合った物件情報をご提供いたします。 | ||
| 取扱会社 |
|
||
| QRコード |
このQRコードを読み取ることで、スマホでも物件情報を確認できます。 |
||
※地図上に表示される物件の位置は付近住所に所在することを表すものであり、実際の物件所在地とは異なる場合がございます。
セザールガーデン札幌に関するこだわり条件から探す
札幌市中央区の町名から探す
札幌市中央区にある駅から探す